
MLS# 225068804
3601 Bonita Beach Rd Sw, Bonita Springs, FL 34134Commercial Only - 3,642 ft² / 3,642 ft²
Sale
Built 2024
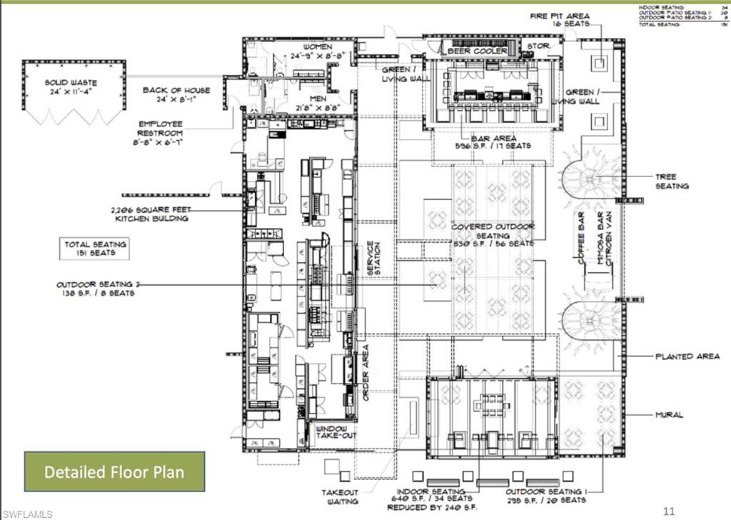
Prime Bonita Beach Road Restaurant & Bar Opportunity – Steps from the Gulf! Unlock your culinary vision with this premium commercial restaurant and bar property on highly desirable Bonita Beach Road, just 3 minutes from the Gulf of America and within walking or biking distance to the beach. Situated on 2.23 acres, this property offers flexible open-concept space, delivered as a complete shell with substantial electrical improvements and a layout designed for a state-of-the-art kitchen. The property’s versatile design supports a range of concepts—from a coastal-inspired casual restaurant and bar to a high-end dining destination. An expansive outdoor seating area enhances the indoor-outdoor flow, perfect for year-round Florida dining and entertaining. Key Features & Investment Highlights, Prime Gulf Coast location on Bonita Beach Road, minutes from the beach. 2.23-acre lot with room for outdoor dining, events, or future expansion. Open-concept shell ready for customization, including a future gourmet kitchen. Substantial electrical improvements already in place. Ideal for restaurant operators, hospitality investors, or concept developers seeking high-traffic, high-visibility space. With its unbeatable location, generous size, and versatile layout, this property is ready to become Bonita’s next dining and entertainment hotspot. Don’t miss this once-in-a-lifetime opportunity to establish your restaurant or bar in one of Southwest Florida’s most sought-after coastal locations.
PROPERTY DETAILS:
THIS PROPERTY IS COURTESY OF:
![]() | Looking to Sell Your Property? Contact our Area Specialist to get a free Comparative Market Analysis and maximize your property's exposure to thousand of potential buyers! |
AREA SPECIALIST:
Area Specialist, REALTOR®
Broker Associate
GRI - Graduate Realtor Institute
Luxury of Naples Group at Premiere Plus Realty
Phone: (239) 280-1237
Website: https://www.realtyofnaples.com
Oleg Mikhailov has been a Naples resident since 1999 and is deeply familiar with the neighborhoods of Naples, Bonita Springs, and Marco Island. His extensive local knowledge allows him to expertly assist you in finding the perfect home for your family’s unique needs. With Oleg as your Real Estate Broker, you can trust that his dedication and expertise will make your experience seamless and enjoyable.
In addition to his real estate career, Oleg is an experienced engineer. This technical expertise enhances his ability to evaluate properties, providing valuable insights into a home’s structure and potential. His engineering background, combined with his work as a financial consultant for global real estate projects and business development programs, equips him with a rare skill set that ensures you’re getting the best advice and support in every transaction.
Outside of his professional career, Oleg was part of a professional auto racing team and has earned several international sports awards. His racing experience has honed his attention to detail and focus, qualities that translate directly to his work in real estate. His stress-free approach, paired with his guiding principle—a happy client is the most important thing—ensures that you’ll have a positive and rewarding experience.
Whether you’re buying or selling, Oleg Mikhailov is committed to making your real estate journey smooth, successful, and satisfying.
This property is courtesy of Coldwell Banker Realty.*Just Listed: new properties that came on the market within the last 30 days.
*Decrease/Increase: listing values that are being recorded within the last 30 days.
*Foreclosures/Short Sale: Please note, all properties are subject to bank approval. Buyers must be pre-approved or show proof of funds before submitting an offer.
The data relating to real estate for sale/lease on this web site come in part from a cooperative data exchange program of the multiple listing service (MLS) in which this real estate firm (Broker) participates. The properties displayed may not be all of the properties in the MLS's database, or all of the properties listed with Brokers participating in the cooperative data exchange program. Properties listed by Brokers other than this Broker are marked with either the listing Broker's logo or name or the MLS name or a logo provided by the MLS. Detailed information about such properties includes the name of the listing Brokers. Information provided is thought to be reliable but is not guaranteed to be accurate; you are advised to verify facts that are important to you. No warranties, expressed or implied, are provided for the data herein, or for their use or interpretation by the user. The Florida Association of Realtors and its cooperating MLSs do not create, control or review the property data displayed herein and take no responsibility for the content of such records. Federal law prohibits discrimination on the basis of race, color, religion, sex, handicap, familial status or national origin in the sale, rental or financing of housing.
This listing has been viewed 27 times.

