MLS# 225044670
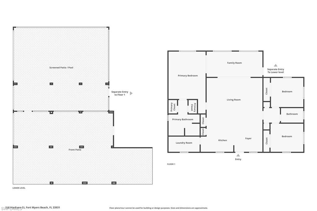
320 Madison Ct, Fort Myers Beach, FL 33931Homes - 1,588 ft² / 1,588 ft² - 2 Carport
3 Bed / 2 Baths / Pool / Spa
Built 2004
Welcome to your coastal paradise! This ELEVATED canal home with boat dock & lift combines luxury, convenience and the ultimate Florida lifestyle! Just a 2 blocks to Gulf & deeded beach access and direct gulf access right in your backyard! 30 minute walk to Time Square or short drive, eliminates excess traffic, convenient to bars and restaurants but far enough away to avoid crowds. Dock your vessel right at home at your covered boat lift and explore San Carlos Bay and beyond. Home & pool equipment is ELEVATED for great peace of mind!! Xeriscape yard offers minimal maintenance. Granite counter tops in a coastal kitchen blends natural elegance with durability. Vaulted ceilings, ample windows and a flowing floor plan ideal for coastal living. The house is elevated, creating a shaded, open air area underneath for entertainment, outdoor living and plenty of storage space. Whether you are seeking a vacation retreat, lucrative rental investment, or year-round sanctuary, this home delivers the best of Fort Myers Beach living!
PROPERTY DETAILS:
THIS PROPERTY IS COURTESY OF:
AREA SPECIALIST:
Area Specialist, REALTORĀ®
Broker Associate
GRI - Graduate Realtor Institute
SRS - Seller Representative Specialist
SFR - Short Sales and Foreclosure Resource Certification
CLHMS - Certified Luxury Home Marketing Specialist
Million Dollar GUILD
RIDQC Certified Residential Interior Designer
DSA Certified Residential Interior Designer
DSA- Designer Society of America member
Luxury of Naples Group at Premiere Plus Realty
Phone: (239) 321-5012
Website: https://www.realtyofnaples.com
Alena Vydra is experienced Broker Associate, Graduate Realtor Institute, have earned the Certified Luxury Home Marketing Specialist designation; recognized as members of the Million Dollar GUILD, Five Star Real Estate Agent, have earned many designations and certifications such as Seller Representative Specialist, Certified Negotiation Expert designations; Short Sales and Foreclosure Resource Certification, and Residential Interior Designer Certification.
Since 2011, Alena has led the Luxury of Naples Group with pride, working alongside educated and experienced colleagues. The team emphasizes education and local market knowledge as crucial to their success. Their main goal is to work diligently to maintain and enhance the group's strong professional reputation. Whether you're buying or selling, Alena and her team are dedicated to providing expert real estate counseling to help you achieve your goals.
Originally from Ukraine, Alena moved to the United States with her husband and two daughters in 2003. She holds a master's degree in Mathematics and Physics. Transitioning from accounting, Alena discovered her passion for real estate in Florida, where she continues to grow professionally, leveraging her mathematical and interpersonal skills. Her role is enriched by meeting clients from different states, countries and helping them find their ideal home in welcoming Naples.
Alena describes Naples as a "must-see city," boasting a vibrant array of activities, a mild climate, unique tropical nature, and pristine white sand beaches.
The Luxury of Naples Group focuses on staying current with market trends through strategic advertising, effective communication, and fostering long-term business relationships. Their commitment is to earn clients' trust and deliver the best possible outcomes.
For expert real estate service in the Estero-Naples-Bonita Springs areas, contact Alena and her team. Their motto is: "Providing The Luxury Real Estate Service You Deserve!"
CONTACT / REQUEST APPOINTMENT:
In order to better assist our clients, we need to know as much as possible relating to: you, your situation, your needs, what you are looking for, and how we can best assist you. Please be as detailed as possible, for if you are vague, we may miss something - thus, not providing the best service possible. Your satisfaction is our top priority. By providing your phone number, you consent to receive communications, including but not limited to text messages and phone calls, from Luxury Of Naples Group regarding your inquiries, appointments, updates, or other services. Message and data rates may apply. You can opt-out at any time by replying STOP to any text message or contacting us.
Thank you! We look forward to the opportunity to earn your trust and your business.
This property is courtesy of Premiere Plus Realty Company.*Just Listed: new properties that came on the market within the last 30 days.
*Decrease/Increase: listing values that are being recorded within the last 30 days.
*Foreclosures/Short Sale: Please note, all properties are subject to bank approval. Buyers must be pre-approved or show proof of funds before submitting an offer.
The data relating to real estate for sale/lease on this web site come in part from a cooperative data exchange program of the multiple listing service (MLS) in which this real estate firm (Broker) participates. The properties displayed may not be all of the properties in the MLS's database, or all of the properties listed with Brokers participating in the cooperative data exchange program. Properties listed by Brokers other than this Broker are marked with either the listing Broker's logo or name or the MLS name or a logo provided by the MLS. Detailed information about such properties includes the name of the listing Brokers. Information provided is thought to be reliable but is not guaranteed to be accurate; you are advised to verify facts that are important to you. No warranties, expressed or implied, are provided for the data herein, or for their use or interpretation by the user. The Florida Association of Realtors and its cooperating MLSs do not create, control or review the property data displayed herein and take no responsibility for the content of such records. Federal law prohibits discrimination on the basis of race, color, religion, sex, handicap, familial status or national origin in the sale, rental or financing of housing.
This listing has been viewed 167 times.




